Click here to return to the main site entry page
Click here to return to the previous page
Extracted from an Abstract of Title by Kay Collins, from a privately held copy, 2023
Church Hall Road
Laid out in 1940

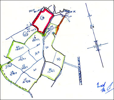
map 1
In 1929 when Rushden Hall was sold by the Sartoris family a plot marked green on the sale map was sold to John Todd, of Mill Hill.
In 1930 John Todd sold some of his land to A M Wheeler, gent, of Horton Kirby, Kent.

map 2
In 1940 A M Wheeler sold a plot marked 20 on the map above to Peterborough Diocesan Board a portion with frontage of 135 feet.

It is thought it had been bought for a proposed Church Hall to be built, hence the new street name.

The Diocese had recently built a new Mission Church - St Mark's - for St Peter's parish in nearby Highfield Road in 1936.

Church Hall Road plots
In 1956 this portion was sold by the Diocesan Board 'with consent of the Charity Commission and the trustees of the Oakham Church Extension Board' to Don Knight who then subdivided the plot into 3 equal portions.

He built a bungalow for himself, in then sold the other two plots.



Click here to return to the main index of features
Click here to return to the History index
Click here to e-mail us