Click here to return to the main site entry page
Click here to return to the previous page
By James Looker, Buildings Archaeologist
Architectural Survey 23 York Road

Floor Plans

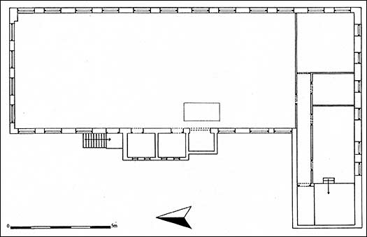
Ground floor plan
Ground floor
1st floor plan
1st floor
2nd Floor plan
2nd floor

Appendix 1
For madifying lasts
Roughing machine
No: 1 – machinery for modifying lasts
No: 2 – an upper sole roughing machine
Sewing machine
for trimming welts
No: 3 – sewing machine “Purting”, machines three rows together
No: 4 – machine for trimming welts
Fly press
Skiving machine
No: 5 – fly press, possibly used for eyeletting
No: 6 – sole waist skiving & feathering machine

For a photo album of the factory click here Ebooks and scroll down for 23 York Road and click run

click here for the Survey Report


Click here to return to the main index of features
Click here to return to the History index
Click here to e-mail us